
Talang struktur baja adalah komponen penting dari sistem drainase atap bangunan. Fungsi utama mereka adalah mengumpulkan air hujan dari atap, mengarahkannya ke dalam pipa vertikal, dan kemudian membuangnya ke sistem drainase luar ruangan, mencegahnya mengikis dinding secara langsung atau fondasi rendam. Desain dan pemasangan produk Liweiyuan ditandai dengan kekuatan tinggi dan bobot ringan, memastikan drainase yang halus dan daya tahan yang luar biasa.
Talang struktur baja adalah komponen penting dari sistem drainase atap bangunan. Fungsi utama mereka adalah mengumpulkan air hujan dari atap, mengarahkannya ke dalam pipa vertikal, dan kemudian membuangnya ke sistem drainase luar ruangan, mencegahnya mengikis dinding secara langsung atau fondasi rendam. Desain dan pemasangan produk Liweiyuan ditandai dengan kekuatan tinggi dan bobot ringan, memastikan drainase yang halus dan daya tahan yang luar biasa.
Gutter struktur baja Liweiyuan terbuat dari bahan tahan korosi dan tahan dampak.
Produk kami adalah hot-dip galvanis, menawarkan ketahanan korosi yang sangat baik, biaya rendah, dan umur layanan yang panjang. Tersedia dalam ketebalan 1,5-2,5 mm, cocok untuk sebagian besar aplikasi.
Terbuat dari stainless steel, produk ini menawarkan ketahanan korosi dan sangat cocok untuk lingkungan pesisir atau lembab. Tersedia dengan ketebalan 1,0-2,0 mm, ia menawarkan harga yang lebih tinggi tetapi umur layanan yang panjang.
Produk baja berlapis warna kami didasarkan pada baja galvanis, dilapisi dengan lapisan tahan cuaca, seperti poliester atau fluorokarbon, untuk resistensi korosi dan efek dekoratif. Tersedia dengan ketebalan 1,2-2,0 mm, mereka cocok untuk bangunan yang membutuhkan daya tarik estetika tingkat tinggi.
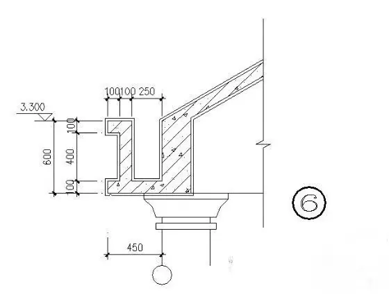
Bentuk struktural selokan struktur baja perlu disesuaikan dengan kemiringan atap dan desain atap. Jenis umum termasuk berbentuk U dan berbentuk V. Proses instalasi adalah sebagai berikut:
Tambang struktur baja kami menggunakan kurung talang baja sudut untuk mengamankannya ke balok atap struktur baja atau purlin. Jarak braket adalah 600-1000mm untuk memastikan distribusi tegangan yang bahkan melintasi selokan.
Talang yang sudah jadi adalah pra-ukuran dan terhubung di tempat menggunakan konektor atau pengelasan. Sealant diperlukan di persimpangan antara selokan dan penghiasan atap.
Kita dapat memasang berkedip di atas decking atap. Ujung bawah selokan harus ditempatkan di bawah penghiasan atap dan disegel dengan sealant. Lubang pembuangan harus disediakan di bagian bawah selokan, terutama untuk koneksi ke riser air hujan.
Proses pembuatan Struktur Baja kami termasuk pemotongan sesuai dengan dimensi gambar, lentur, lukisan, inspeksi produk jadi, pengemasan, dan pengiriman. Tambang struktur baja Liweiyuan dirancang dan dipasang untuk memastikan ketahanan korosi, drainase halus, dan daya tahan, memastikan drainase yang efisien.